本文
物件No.229
掲載日:2026年3月18日更新
印刷ページ表示
部屋数が多く広い敷地の物件。市街地や小学校に立地です
柳井地区
売買1100






所在地
柳井市柳井
価格
売買1100
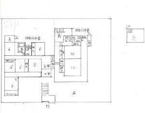
間取り
8K
構造・階数
木造2階建て
敷地面積
998.82平方メートル(302.14坪)
延床面積
334.15平方メートル(101.08坪)
建築年月
昭和34年
空き家になった時期
平成16年9月
アクセス
JR山陽本線柳井駅徒歩13分
駐車場
無
設備
水道
ガス(プロパン)
給湯設備なし
浄化槽(洋式)
附帯物件
特記事項
接道がないため再建築不可
その他
不動産業者媒介物件
おすすめポイント
・閑静な住宅街で、小学校が近くにあります。
・白壁の町並みに近いエリアです。
・白壁の町並みに近いエリアです。
備考






