本文
ストーンマーケット翠が丘公園弓道場(柳井市弓道場)【令和8年3月30日供用開始しました】
新弓道場は令和8年3月30日月曜日に供用を開始しました

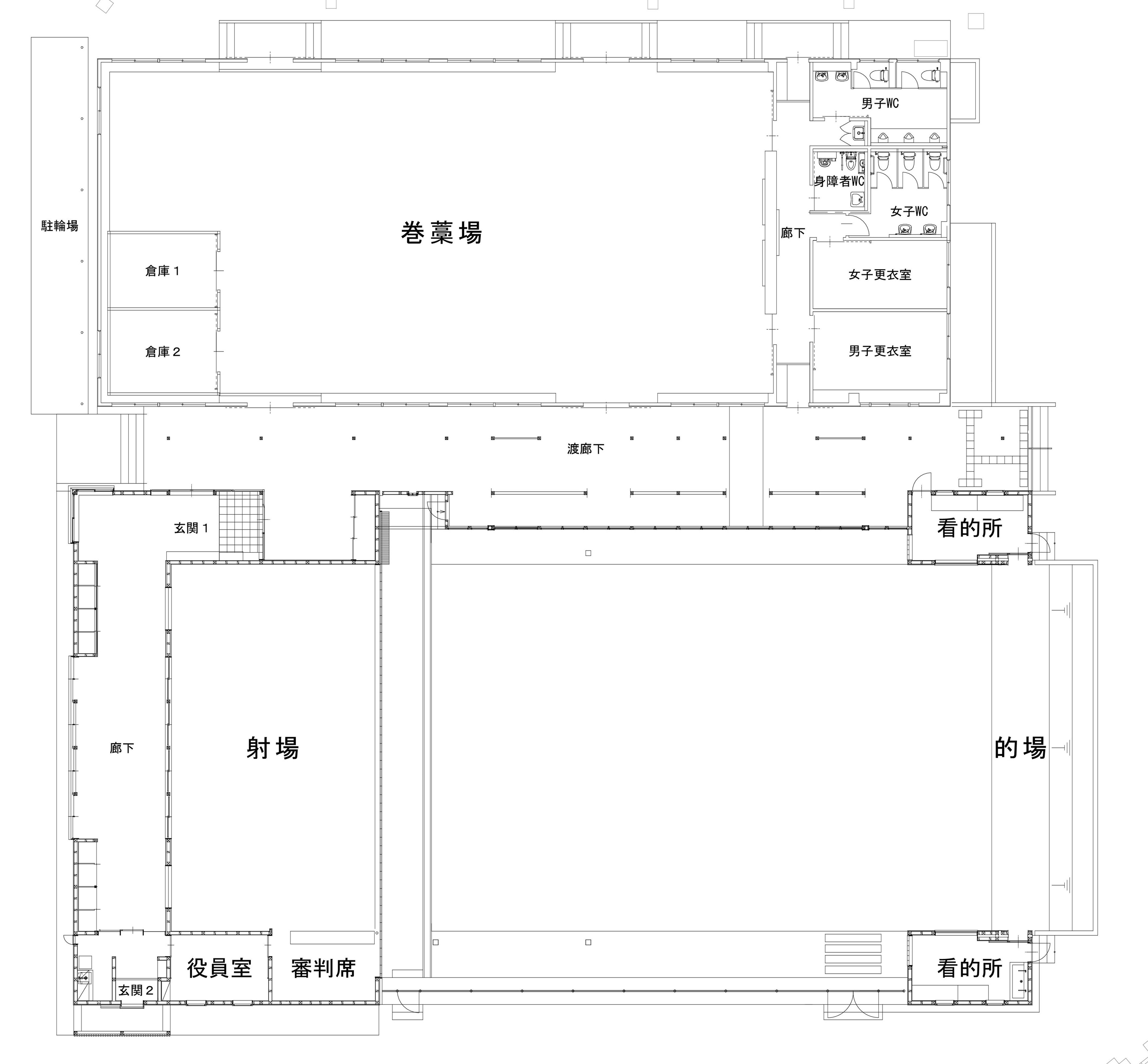
新弓道場の全景と射場内観
施設概要
所在地
柳井市柳井3895番地2
※管理人は常駐していません。
開館時間
9時から21時まで(原則)
休館日
12月29日~翌年1月3日
使用料
| 区分 | 単位 | 使用料 【9時~21時】 |
使用料 【左記時間外】 |
|---|---|---|---|
| 専用使用 | 1時間につき | 770円 | 920円 |
| 個人使用※ | 1人・1時間につき | 110円 | 130円 |
| 役員室冷暖房設備使用料 | 1時間につき | 50円 | 50円 |
※専用使用がない時間帯のみ使用可
※市内在住・在学の学生及び市内社会体育団体が使用する場合は、使用料の減免が受けられる場合があります。詳しくはお問い合わせください。
アクセス
施設使用方法
使用を希望する場合は、申請期間内に使用許可申請書を市教育委員会に提出してください。
なお、使用許可は先着順とし、個人使用については専用使用がない時間帯に限ります。
※施設の空き状況は、弓道場使用予定をご確認ください。
申請期間
使用を希望する日の2か月前の月初から当日使用開始前まで
※ただし、使用申請の受付及び使用許可は、開庁時間内に限ります。
使用許可申請書
柳井市弓道場使用許可申請書 [Wordファイル/23KB]
柳井市弓道場使用許可申請書 [PDFファイル/64KB]
※1か月単位で申請する場合は、別紙「日程表(Excel/PDF)」に記入して提出してください。
提出先
〒742-0021
柳井市柳井3670番地1
柳井市教育委員会 生涯学習・スポーツ推進課
- Fax 0820-25-2433
- メール shogaigakushu☆city-yanai.jp ※☆を@に変換して送信してください。
弓道場使用予定
- 3月使用予定表 [PDFファイル/58KB]
- 4月行事予定表 [PDFファイル/137KB]
- 5月使用予定表(調整中)
使用上の注意
- 複数の団体や個人が同時に使用する場合は、矢を放つ際に声かけを行うなど、利用者相互に安全確認を行って使用してください。
- くぎ付けや貼り紙など、施設を損傷するおそれがある行為をしないでください。
- 特別の設備を行う場合は、必ず許可を受けてください。
- 建物内での喫煙や火気使用は禁止です。



